Квартиры «точечных» зданий повышенной этажности не могут быть обеспечены кладовыми в цоколе, поэтому эти здания оборудуются лифтами, габариты которых позволяют поднимать детскую коляску в квартиру. Иногда кладовые предусматриваются на каждом этаже у лестничного холла (как, например, в башенных домах, построенных в Ковентри}.
Для обслуживания многоэтажных зданий и жилых комплексов устраиваются домовые прачечные с машинами для стирки и отжима белья и сушильными камерами. Размещаются они в цокольном этаже или, как это сделано в лондонском квартале Холфилд Пэддингтон, в отдельной постройке. Пользование такой прачечной оплачивается по счетчику времени. Для тех, кто производит стирку в домашних условиях, сушильные помещения устраиваются на плоских кровлях (как, например, в домах квартала Спа-Грин) или непосредственно в квартирах.
Многоэтажные дома оборудуются мусоропроводами, приемные отверстия которых располагаются не в квартирах, а на лестницах, в лифтовых холлах, или в камерах, выходящих на общие балконы. Часто устройство мусоропровода связано с промежуточными площадками лестничной клетки. Это позволяет сократить количество приемных клапанов, располагая их через этаж, и разместить сборную камеру так, чтобы замена контейнеров не •была сопряжена с перетаскиванием их на значительное расстояние. Ствол мусоропровода делается из глазурованных керамических труб.

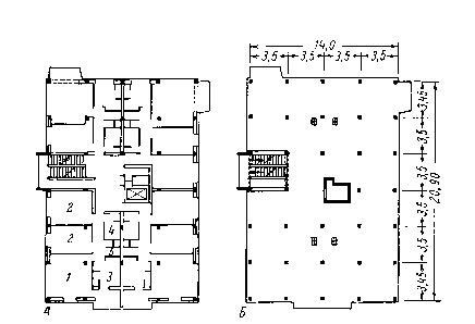
149. План первого этажа восьмиэтажного жилого дома. Комплекс Спа-Грин в Лондоне.
.
.
.
В очень немногих зданиях, в частности в комплексе Спа-Грин, применяется гидравлическое мусороудаление по системе М. Гарчи. Мусор сбрасывается при этом в кухонный слив и уносится струей воды по трубопроводу в сборную камеру, расположенную во дворе. Избыточная вода поступает в канализационную сеть, а мусор отсасывается по трубам на мусоросжигательную станцию. При несомненных удобствах и гигиеничности этой системы она связана с большими первоначальными капиталовложениями и поэтому употребляется очень редко.
Отопление многоэтажных жилых зданий в Англии весьма своеобразно. В старых домах отапливалась лишь комната дневного пребывания, в которой располагался камин. Спальни обогревались теплым воздухом, проникавшим из жилой комнаты. Мнение, что постоянное отопление спален, где люди, как правило, не находятся днем, является излишним, бытует в Англии и поныне (разумеется, это возможно лишь при мягком английском климате, где мороз в 3—5° считается сильным и держится не более нескольких дней подряд}. Поэтому и сейчас в большинстве случаев приборы отопления размещаются лишь в комнате дневного пребывания, на кухне и в первой спальне — в больших квартирах. Остальные комнаты обогреваются переносными электроприборами. Иногда при централизованном теплоснабжении в спальнях также устанавливаются небольшие тепловые регистры.
Сравнительно невысокая плотность застройки определяет значительные затраты на устройство центрального отопления. Чтобы обеспечить должную экономичность, считается необходимым более или менее компактно группировать вокруг одной котельной не менее 400 квартир. Стремление сократить капитальные затраты приводит к невероятному, на наш взгляд, анахронизму: для отопления квартир в новых многоэтажных домах устраиваются камины, топящиеся каменным углем. Этому способствует и традиционное пристрастие англичан к каминам, а также стремление обеспечить независимое отопление отдельных квартир, учитывая не только разные привычки, но и далеко не одинаковые финансовые возможности различных семей.
Местное квартирное отопление каменным углем применяется даже в одиннадцатиэтажных зданиях, причем используется открытый камин в жилой комнате, соединяемый с водогрейным котелком, который обеспечивает отопление остальных помещений и горячее водоснабжение. Это связано со значительными неудобствами — задымляется воздух, возникает опасность пожала. Доставка и хранение топлива, удаление золы превращаются в серьезную проблему для жильцов. В квартирах приходится выделять площадь для топливной кладовой, конструкции усложняются устройством дымовых каналов.
Однако, несмотря на все неудобства, такое отопление имеют, например, одиннадцатиэтажные мезонетты на Бентэм-род и Пиктон-стрит в Лондоне (последний из комплексов еще строился в 1958 г.).
Котельные центрального отопления работают обычно на нефти или газе с автоматическим регулированием при помощи термостатов. Такая система считается наилучшей в гигиеническом отношении и наиболее дешевой в эксплуатации.

150. Механизированная прачечная жилого комплекса Холфилд А — разрез; Б — план; 1 — стиральные машины; 2 — центрифуги; 3 — корыта; 4 — сушильные камеры; 5 — места для дополнительных стиральных машин; 5 — детская комната.
.
.
.
Интересным примером устройства районного отопления является утилизация отходящего тепла электростанции Беттерси в Лондоне. Горячая вода со станции при температуре 93,5° передается по трубам, проложенным под Темзой, на южный берег реки — в жилые комплексы с общим населением около 10 тыс. человек. Один из них — уже упоминавшийся Черчилль-гардн, где горячая вода аккумулируется в башнеобразном стальном цилиндрическом резервуаре высотой 38 и диаметром около 9 м. Для предотвращения потерь тепла резервуар изолирован трехдюймовыми пробковыми плитами. Снаружи он окружен остекленным стальным каркасом. Отсюда горячая вода подается к домовым отопительным системам и в сеть водоснабжения.

151. Устройство мусоропровода в лестничной клетке десятиэтаж* ных домов комплекса Черчилль-гардн
По подсчетам английских специалистов, этот метод отопления дает большую экономию, которая выражается примерно в тонне угля в год на каждого жителя теплофицированного района.
Любопытно отметить, что введение в комплекс башни-резервуара архитектурно тщательно «обыграно» и эстетические соображения несомненно сыграли свою роль при разработке системы отопления. Немалое значение для формирования силуэта зданий комплекса имеют и цилиндрические надстройки над их плоскими крышами, в которые заключены баки холодной и горячей воды (см. рис. 120).
Отопительные приборы, устанавливаемые в квартирах, весьма разнообразны. Однако преобладающим типом являются секционные или панельные радиаторы с теплоотдачей путем конвекции. В последнее время внедряются более эффективные металлические настенные приборы лучистого отопления. Начинает применяться и потолочное лучистое отопление, причем тепловые регистры заделываются в монолитное железобетонное перекрытие или подвешиваются к сборному настилу и затем скрываются под штукатуркой.
Интересны также опыты электроотопления путем укладки отопительных элементов под полом. Они автоматически включаются ночью, в часы наименьшего расхода электроэнергии; тепло же в течение долгого времени сохраняется в бетоне перекрытия. Такие приборы еще не нашли распространения в массовом строительстве, и эксплуатация их обходится дороже других систем, но, по-видимому, за ними будущее.
Кухни оборудуются газовой или электрической плитой, мойкой со сливной доской и при отсутствии центрального водоснабжения — водонагревателем. Встроенная мебель включает рабочий стол, шкафы для посуды и продуктов. Там, где не предусматривается холодильник, устраивается вентилируемый шкаф. В дешевых квартирах, жильцы которых не могут пользо-зоваться сравнительно дорогими услугами коммунальной прачечной, отводится место для стиральной машины или бака для кипячения белья.
В отличие от малоэтажных домов, где кухни вытягиваются вдоль наружной стены, в многоэтажных зданиях стремление сократить ширину фронта квартиры заставляет располагать кухню в глубину (исключение составляют лишь галерейные дома). Минимальная ее ширина принята 4 фута 6 дюймов (1,37 м). Особенностью планировки кухонь в английской практике является стремление обеспечить наилучшее освещение мойки, благодаря чему она обычно располагается под окном.
Кухонное оборудование изготовляется различными фирмами, однако установленные стандартом габариты основных предметов позволяют легко его комбинировать. Поскольку высота помещений невелика, навесные шкафы обычно примыкают непосредственно к потолку.
.
.
.
В практике английского строительства здания до шести этажей в большинстве случаев сооружаются в традиционных конструкциях — с несущими пустотными стенами из кирпича, но перекрытия устраиваются обычно железобетонные, сборные или монолитные, в некоторых случаях — армокерами-ческие. Применяются и дома со стенами, выполняемыми в инвентарной опалубке, из монолитного беспесчаного бетона с одним лишь крупным заполнителем. Такие здания сравнительно дешевы, их основные конструкции быстро возводятся, но требуют последующей сложной отделки как изнутри, так и снаружи. Темпы строительства повышаются путем применения для стен скользящей опалубки, которая не только ускоряет их возведение, но и обеспечивает высококачественную поверхность бетона.
Для строительства домов от трех до шести этажей, а также зданий большей этажности в последние годы применяются в основном конструктивные системы двух типов: а) однопролетные, перекрытия которых опираются на продольные наружные стены, и б) с несущими поперечными стенами или прогонами. Двухпролетная система с тремя несущими продольными стенами начинает выходить из употребления. При обычных в Англии нешироких корпусах напряженно армированный бетон сделал внутреннюю стену излишней. Достоинством однопролетной системы является возможность гибкой планировки. Обеспечение жесткости здания требует, однако, устройства поперечных стен с интервалом 18—30 м (что зависит от высоты и протяженности здания).

152. Схемы основных конструктивных систем, используемых в Англии при строительстве многоэтажных жилых зданий А — однопролетная система; Б — система поперечных опор (стен или столбов с прогонами); В — двухпролетная система
В секционных домах жесткость может быть обеспечена стенами лестничных клеток и лифтовых шахт. Наружная стена иногда заменяется несущим железобетонным каркасом с легким заполнением.
В конструктивной системе второго типа перекрытия могут укладываться на поперечные стены или прогоны, лежащие на часто поставленных легких стойках с двойными перегородками между ними.
В том и другом варианте система с поперечным опиранием дает некоторую экономию стоимости кубатуры здания — примерно около 2°/о. Однако гибкость системы первого типа во многих случаях позволяет добиться более значительного экономического эффекта за счет рациональной планировки. Поперечные опоры применяются поэтому главным образом в зданиях галерейного или коридорного типа, где жесткий шаг хорошо связывается с планировочной структурой.
Если для строительства зданий до шести этажей применяются преимущественно «традиционные» конструкции, то дома большей этажности возводятся исключительно из железобетона. Опыт использования стального каркаса показал, что он невыгоден экономически и не дает фактического сокращения сроков строительства, так как облицовка металлических колонн отнимает столько же времени, сколько и сооружение монолитных железобетонных.
Важную роль в конструировании высоких зданий играют соображения пожарной безопасности.
По английским нормам, здания большой этажности должны иметь такую структуру, которая предотвращала бы распространение огня в случае пожара. Дом проектируется как серия ячеек, замкнутых стенами и перекрытиями, имеющими минимальный предел огнестойкости в один час (при входах устраиваются двойные двери, каждая из которых должна иметь предел огнестойкости не менее 0,5 часа).
В то же время внутри ячеек при любой этажности считается допустимым применение конструкций из сгораемых материалов. Так, для промежуточных перекрытий квартир, расположенных в двух уровнях, используются легкие деревянные настилы, из дерева сооружаются внутриквартирные лестницы и т. д.
Установленные нормы определили целесообразность применения в многоэтажных протяженных зданиях двухэтажных квартир типа «мезонетт» и конструктивных систем с поперечными стенами. Их несущие конструкции и основные перекрытия образуют огнестойкие преграды между ячейками; промежуточное же перекрытие делается легким и дешевым.
Различные варианты сочетания несгораемых и сгораемых конструкций можно видеть на примере одиннадцатиэтажных зданий однотипной планировки, построенных за последние годы в Лондоне. Дома на Бентэм-род (рис. 139) имеют сборный каркас из железобетонных рам и перекрытия между ячейками из гладких сборных плит толщиной около 10 см с предварительно напряженной арматурой. Соседние ячейки разделяются примыкающими к каркасу двойными сборными бетонными перегородками с воздушной прослойкой между ними, что обеспечивает хорошую звукоизоляцию.
Блоки на Пиктон-стрит (рис. 141), в отличие от рассмотренных выше, имеют монолитные бетонные поперечные стены толщиной 18 см (толщина участков стен с каналами 36 см). Однако перекрытия здесь также из плоских сборных панелей шириной около 90 см и толщиной 12 см. Несущие стены не имеют арматуры и выполнены из бетона марки 210 кг/см
В том и другом случаях промежуточное перекрытие внутри ячеек — сборное деревянное, укладываемое по сборным деревянным балкам, снизу оно подшито сухой штукатуркой и не имеет дополнительной звукоизоляции, поскольку разделяет помещения, занятые одной семьей. Такие же перекрытия в домах в районе Алтон, аналогичные по конструкции, выполнены, однако, с прокладкой звукоизолирующего материала «роксил» (рулонный материал из минеральной шерсти, проложенной между листами плотной бумаги).
Наружные стены, свободные от нагрузок, опираются на плиты перекрытий. В домах на Бентэм-род они выполнены из легких железобетонных панелей с большой площадью остекленения. В домах на Пиктон-стрит панели наружных стен размером на комнату имеют деревянный каркас, обшитый снаружи тиковым деревом, изнутри — сухой гипсовой штукатуркой. Отеплены панели слоем минеральной ваты.
Первые этажи домов подняты на массивную монолитную конструкцию, состоящую из пилонов и объединяющей их плиты. Сочетание монолитных и сборных элементов весьма характерно для строительной практики современной Англии. Чисто сборные конструкции считаются чрезмерно дорогими и в многоэтажном строительстве не применяются.
Причины этого кроются, во-первых, в раздробленности строительной промышленности и отсутствии базы комплексной индустриализации. Массовое производство сборных элементов не налажено, совершенных средств транспортировки и монтажа недостаточно. Это заставляет увеличивать сечения изделий и усиливать их армирование с учетом транспортных и монтажных нагрузок. Другой причиной является то, что высокая культура производства монолитного железобетона с применением сборно-разборных металлических опалубок в значительной мере смягчает присущие этому методу недостатки. Хорошо налаженное бетонирование на месте часто успешно конкурирует с производством сборных элементов, еще не получившим должного развития.

153. Одиннадцатиэтажные жилые дома на Пиктон-стрит в Лондоне А — принципиальная схема конструкций жилой ячейки и последовательность монтажа сборных элементов; Б — конструкция наружной стены из деревянных панелей; 1 — верхняя обвязка; 2 — оконный переплет; 3 — средняя обвязка; 4 — сухая штукатурка;

5 — пол из шпунтованных досок 12,5 мм; 6 — вергн-кальная обшивка шпунтованными досками тикового дерева 12,5 мм; 7 — рулонный отеплитель 25 мм; 8 — полосовое железо; 3 — сборная железобетонная балка; 10 — сборные деревянные перекрытия; 11 — алюминиевое покрытие; 12 — пол из пластмассовых плиток; 13 — выравнивающий слой; 14 — изоляционный ковер; 15 — сборная железобетонная плита; 16 — штампованные алюминиевые перила; 17 — армированное стекло; 18 — асфальт; 19 — облицовка листовым алюминием; 20 — водосточная труба; 21 — алюминиевый швеллер.
.
.
Использование усовершенствованных монолитных конструкций для обеспечения жесткой связи между сборными элементами представляет несомненный интерес и может быть чрезвычайно эффективно.
Следует отметить, что английские специалисты считают важным преимуществом сборных конструкций удобство напряженного армирования, поэтому они применяются в первую очередь там, где такое армирование наиболее целесообразно.
Из монолитных конструкций, применяемых для многоэтажных жилых зданий, наиболее рациональной является пространственная система жестко связанных горизонтальных и вертикальных плит — перекрытий и поперечных стен, образующих единый ячеистый каркас здания в целом. Наружная стена при этом превращается в ряд легких панелей, поэтажно опирающихся на выпуски плит перекрытий. Отсутствие прогонов и колонн не только упрощает и облегчает конструкцию, но и раскрывает дополнительные возможности внутренней планировки; большая свобода появляется при выборе размеров проема и организации фасада.
Бетонирование производится в сборных опалубках из стандартных Z-образных элементов, последовательно переносимых с этажа на этаж, что очень удобно благодаря простым гладким поверхностям конструкции.
Впервые примененная в домах квартала Спа-Грин в Лондоне (1946— 1950 гг.) эта система использована затем на строительстве комплекса Хол-филд Пэддингтон (1951—1954 гг.). В первом случае был принят малый шаг поперечных несущих стен — 3,25 м, при котором толщина плиты перекрытия составляла 11,3 см.
Во втором случае шаг увеличен до 7 м, что заставило принять плиты толщиной почти в 20 см.
Планировочная организация домов-башен или «точечных блоков» затрудняет выбор четких конструктивных систем. Обычно здесь сочетаются несущие стены-перегородки с колоннами и прогонами на внешних углах блока.
Для того, чтобы избежать трудностей, возникающих при подчинении конструкции сложной структуре точечного блока, мастерская главного архитектора Бирмингама Э. Шеперда-Фидлера предложила вписывать его планировку в простую сетку каркаса. Плоские монолитные плиты перекрытий без ребер и прогонов допускают сравнительно свободное расположение внутренних перегородок. Каркасная решетка, образуемая столбами и плитами перекрытий, должна заполняться стандартными панелями легких нене-сущих наружных стен.
Экономический анализ выявил наибольшую целесообразность сетки каркаса 3,5 X 3,5 м при сечении столбов 25 X 25 см и толщине плиты 12,5 см. На основе такой сетки был запроектирован восьмиэтажный башенный блок с четырьмя квартирами в две и три комнаты на каждом этаже. Планировка квартир получилась удовлетворительной, если не считать того, что в трех квартирах на каждом этаже в комнате дневного пребывания оказался отдельно стоящий столб.

154. Восьмиэтажный односекционный жилой дом в Бирмингаме. Проект 1956 г. Арх. Шеперд-ФидлерА — план типового этажа: Б — схема расположения несущих столбов; I — комната дневного пребывания; 2— спальня; 3— кухня; 4 — ванная; В — уборная

155. Конструкция восьмиэтажных домов комплекса Спа-Грин и сборная металлическая опалубка, применявшаяся при ее возведении. Аксонометрические схемы
Независимо от качеств планировки этот пример интересен подходом к решению планировочной задачи путем подчинения ее наивыгоднейшей конструктивной системе.
Для многоэтажных зданий особое значение приобретает облегчение конструкции наружных ненесущих стен. Однако пустотная кирпичная кладка из двух рядов в полкирпича все же применяется наиболее часто. При кирпичном заполнении каркас либо оставляется открытым, либо облицовывается керамической плиткой того же тона и размера, что и кирпич. Иногда заполнение включает один слой, выполненный в кирпичной кладке, а второй — из сборных железобетонных плит с офактуренной поверхностью.

156. Жилой дом в Бетнал-Грине (Лондон), 1954 г. Панель заводского изготовления для заполнения наружных стен Схема панели: 1 — неподвижная фрамуга; 2 — оконный переплет с боковой навеской; 3 — оконные створки, поворачивающиеся на горизонтальной оси; 4 — глухая панель. Деталь — сечение глухой панели: 1 — импост; 2 — обвязка из твердого дерева;.
3 — внутренняя обвязка; 4 — мастика; 5 — внутренний деревянный каркас; в — алюминиевая фольга; 7 — сухая штукатурка; в — вертикальная обшивка из шпунтованных досок; 9 — армированное стекло с рифленой внутренней поверхностью; 10 — отверстие для вентиляции; 11 — нижний брус; 12 — мастика; 13 — металлическое окрытие; 14 — монолитный бетон.
.
.
Широко применяются легкие слоистые панели заполнения размером на комнату с деревянным каркасом. Мы уже упоминали о такой конструкции стен домов на Пиктон-стрит, где панели обшиты снаружи тиковым деревом. В качестве наружного слоя панелей применяется также непрозрачное армированное стекло, иногда окрашенное. Его поверхность хорошо защищает стену от воздействий атмосферы. В домах района Бетнал-Грин (Лондон) панели стен со стеклянным наружным слоем имеют деревянную внутреннюю обшивку и промежуточный слой из сухой штукатурки, оклеенной алюминиевой фольгой, что препятствует потерям тепла путем излучения.
Торцовые стены многоэтажных домов обычно лишены окон. Возводятся они как в виде массива кирпичной кладки или монолитного бетона, так и на основе бетонного каркаса с заполнением кирпичом или офактуренными бетонными плитами. Изнутри каркас заполняется клинкерными блоками.
В условиях английского климата конструирование наружных ограждений значительно упрощается благодаря тому, что отсутствует опасность промерзания и нет необходимости заботиться об уничтожении «мостиков холода». Конструктивный каркас может быть открыт на фасаде, балконы могут являться непосредственным продолжением плиты перекрытия, упрощается решение стыков. Значительно меньшие требования, чем при нашем климате, предъявляются и к конструкции самой панели.

157. Жилые дома в Хэтфилде, 1954 г. Архитекторы Бретт и Бойд Балконы с ограждением из асбоцементных плит, крепящихся к стальным трубчатым.
стойкам

158. Стандартная ячейка галерейных домов на улице Голден-лайн в Лондоне, 1957 г. Архитекторы Йорк, Розенберг и Мердэлл Интерьер комнаты дневного пребывания семьи и схемы планов этажей жилой ячейки решетки или же устраиваются неширокие зазоры между панелями заполнения и стойками.
.
Конструкции ограждений балконов весьма разнообразны. Высота их обычно около 100 см. Для того, чтобы придать балкону большую интимность, устранить ощущение высоты, ограждение обычно делается непрозрачным; однако, чтобы у детей не возникало желания выглянуть наружу, глухой парапет сочетается с неширокими вставками легкой металлической вставкой.
Наряду с глухими парапетами из монолитного бетона, применяются ажурные бетонные плиты заводского изготовления; устраиваются кирпичные стенки в бетонной обвязке, либо деревянные заполнения, скрепленные с металлическими стойками. Пожалуй, чаще всего для ограждений используется армированное стекло в алюминиевом обрамлении, которое крепится к стальным трубчатым стойкам. Иногда стекло заменяется листами волнистой асбофанеры или алюминия, получающими яркую окраску. Ограждения, сплошь состоящие из металлической решетки, проектируются гораздо реже.
Многоэтажные здания, как правило, имеют плоские бесчердачные кровли с рубероидным или асфальтовым покрытием. Такая конструкция вполне надежна в условиях почти бесснежной английской зимы и не требует значительного отепления. Отвод воды происходит по внутренним водостокам.
Инженерные коммуникации прокладываются в подвалах или каналах под полом. Но для размещения машинных отделений лифтов, баков и вентиляционных устройств над плоской кровлей приходится сооружать надстройки, иногда серьезна затрудняющие архитектурное решение здания.
В отличие от предвоенных построек, как правило угрюмо серых, в наружную отделку все чаще вводится полихромия и контрастные отделочные материалы. Наряду с яркой расцветкой софитов и ограждений балконов,.
применяется интенсивная окраска панелей заполнений, подчеркивающая сетку основных конструктивных элементов.

159. Благоустройство жилого комплекса. Микрорайон Северный Марк-Холл в Харлоу
Примером интенсивного цветового решения являются фасады зданий комплекса Холфилд-Пэддингтон, о которых упоминалось выше (рис. 134). Здесь применена облицовка ненесущих стен ярко-красным кирпичом; полосы серо-голубого кирпича отмечают уровень перекрытий. С цветом продольных стен контрастируют торцы, облицованные мелкой светлой керамической плиткой, предварительно собранной в крупные панели по 30 штук в каждой. Кроме того, ограждения балконов выполнены здесь из офактуренного бетона различных цветов.
При легких пустотных стенах окна часто заключаются в сборные железобетонные коробки, а одинарное остекление — в тонкие переплеты, штампованные из стали. Такая конструкция опять-таки возможна благодаря английским климатическим условиям.
Наряду с вертикальными створками, применяются и окна, которые открываются, поворачиваясь вокруг горизонтальной оси. Скользящие переплеты, створки которых поднимаются вверх или опускаются вниз по направляющим, очень распространенные в старых домах, не применяются в новом строительстве.
Внутренняя отделка помещений очень проста, но добротна. Оштукатуренные гладкие стены комнат соединяются с потолками под прямым углом без карниза. Поверхности сборных железобетонных элементов, перегородок, бетонных стен и перекрытий, выполненных в металлической опалубке, нуждаются только в шпаклевке. Затем стены и потолки комнат окрашиваются клеевыми красками обычно одного и того же светлого тона, что подчеркивает единство объема помещения. Обои применяются очень редко.
Пропорции помещений и их пространственная взаимосвязь являются основными композиционными средствами формирования интерьера квартиры.
Стены кухонь и санитарных узлов отделываются глазурованной плиткой, которую иногда заменяет офактуренная асбоцементная. Наряду с паркетными и реечными полами, для комнат широко применяется цветной линолеум, цветные хлорвиниловые и резиновые плитки. В последнее время усиленно рекламируются отделочные материалы, изготовляемые на основе пластмасс. Различные сорта их могут применяться как для отделки вертикальных поверхностей, так и для покрытия полов.
Не решенной до конца проблемой является звукоизоляция в жилых зданиях. Требуемая нормами массивность конструкций, разделяющих ячейки, эквивалентная железобетонной плите толщиной 15 см, не всегда достаточна сама по себе и, что главное, во многих случаях требует излишнего расхода материалов. Это заставляет уделять серьезное внимание размещению по соседству помещений с одинаковым уровнем шума и обеспечению изоляции спален планировочными приемами. В этих же целях лифтовые шахты часто выделяются в самостоятельную конструкцию, не связанную с основной структурой дома.
.
.
.
Выше мы уже упоминали о том, что благодаря предельному облегчению конструкций малоэтажные дома являются в Англии наиболее дешевым типом жилища. Правда, это получается отчасти потому, что стоимость многоэтажных зданий здесь более высока, чем в других странах, из-за несовершенства методов строительства. Для английских строителей многоэтажные дома еще не стали привычным объектом; сказывается и то, что строительные фирмы мелки и испытывают недостаток в мощных механизмах. Кроме того, требования сквозного проветривания квартир и прямого естественного освещения санузлов также отражаются на стоимости.
Ввиду большого разнообразия приемов планировки и стандартов благоустройства в английской строительной практике трудно последовательно проследить закономерность в соотношении этажности зданий и стоимости жилищ. Если средняя кубатурная стоимость 1 л*
полезной площади в трех-, четырехэтажных домах примерно на 25% выше, чем в аналогичных по площади квартирах двухэтажных домов, то начиная с пяти этажей происходит резкое вздорожание в связи с необходимостью сооружать лифт. Однако закономерная зависимость между стоимостью строительства и высотой здания от шести до десяти этажей не прослеживается. Наиболее экономичные одиннадцатиэтажные здания обходятся соответственно не дороже, чем шести- и семиэтажные. Переход к новой, более высокой категории стоимости начинается с двенадцати этажей и связан он с резким усложнением инженерного оборудования.
Такое выравнивание произошло после утверждения новых норм пожарной безапасности, допускающих связь квартир только с одной лестничной клеткой, независимо от этажности, при условии разделения здания на огнестойкие ячейки и сообщения квартир с лестницей через воздушный шлюз. Это устранило резкий скачок затрат на строительство зданий выше шести этажей, происходивший из-за развития транспортного узла. Стоимость основных конструкций (при наиболее рациональном решении в каждом случае) в среднем может оставаться неизменной, так как вздорожание одних элементов покрывается более эффективным использованием других. Так, падение удельной стоимости лифтов на одно жилище с повышением этажности в известной степени компенсирует вздорожание инженерных коммуникаций.
Поскольку в английских условиях одиннадцатиэтажные здания в сред* нем ненамного дороже шестиэтажных, они зачастую оказываются экономически • оправданными в районах с большой плотностью. При смешанной застройке применение одиннадцатиэтажных зданий позволяет оставить больше места для наиболее дешевых двух-, четырехэтажных домов.
Нельзя забывать и о таком экономическом факторе, как стоимость земельных участков. В центральных районах больших городов он становится более существенным, чем реальная экономика строительства, и может опрокинуть и разумные стандарты плотности и освещенности, и заботу о сохранении исторически сложившегося облика города. Не исключено поэтому,, что при реконструкции его центра и дальнейшем росте плотности застройки внутренних зон Лондон пойдет по пути Нью-Йорка и будет застраиваться небоскребами в 20—30 этажей на ограниченных участках. Как предвестники этого уже появляются в архитектурной прессе «сверхурбанистические» проекты (как, например, проекты застройки районов Пэддингтон и Барбикен).
Важным фактором в экономике многоэтажного жилья является нагрузка вертикальных коммуникаций. По английским данным, устройство прохода к квартирам через галерею дает среднюю экономию по сравнению с секционным типом жилища более чем на 6°/о.
Из зданий секционного типа также благодаря большей нагрузке лестничных узлов наиболее экономичными оказываются точечные блоки. Интересно отметить, что благодаря резкому увеличению глубины корпуса при компактном плане односек-ционность дома вовсе не вызывает возрастания площади наружных стен по отношению к площади перекрытий. Наоборот, если для прямоугольных многосекционных блоков это соотношение в английской практике составляет в среднем 0,83, то для односекционных домов-башен оно снижается до 0,71 (в нашей практике при большей высоте этажа это соотношение обычно колеблется от 0,65 до 0,75). Думается, что такое сравнение является серьезным аргументом в пользу односекционных блоков.